FIGYELEMFELHÍVÁS!

Az aktuális időjárási körülmények miatt.

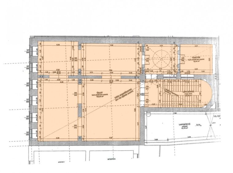
Piac utca 57.

üzlet (korábbi Líra Könyvesbolt)
Alapterület
134+184+227 m2
Irányadó bérleti díj
Ajánlatot várunk
Megközelíthetőség
Földszinti utcafronti

Exkluzív belvárosi üzlet kiadó!

Új bérlőt keres a Piac utca 57. szám alatti épület földszintjén található - korábban Líra Könyvesboltként működő - utcafronti üzlet. A háromszintes üzlet teljes alapterülete 545 m2, 134 m2 pinceszinti, 184 m2 földszinti és 227 m2 emeleti területekből áll. 

A barokk, a klasszicizmus és az eklektika stílusjegyeit őrző gyönyörű épületben működött egykoron Kaszanyitzky Endre, az országos hírű üvegkereskedő üzlete. Impozáns megjelenésének, belső kialakításának, valamint frekventált elhelyezkedésének köszönhetően kiváló lehetőséget biztosít elegáns üzlet, iroda vagy vendéglátóegység kialakítására. 

Gyalogosan, tömegközlekedéssel és gépkocsival is kiválóan megközelíthető, a villamos megállója közvetlenül az üzlet előtt található. Gépkocsival történő megközelítés esetén kiváló parkolási lehetőséget biztosít az Arany János utcai parkoló. Fűtési módja távfűtés.

Az üzletet is magában foglaló tömbben nagyszabású beruházások és fejlesztések várhatók, melyek miatt a gyalogosforgalom további növekedésére, illetve a terület felértékelődésére lehet számítani.

Az üzlet bérleti díjára vonatkozóan ajánlatot várunk az érdeklődőktől.

Cím
Debrecen, Piac utca 57.
Helyrajzi szám
9162
Elhelyezkedés/Övezet
I. Kiemelt városközpont
Alapterület
134+184+227 m2
Kategória
Üzlethelyiség
Távhő bevezetve
Igen (Mért)
Elektromos áram bevezetve
Igen
Gáz bevezetve
Nem
Víz bevezetve
Igen
Lift
Nincs megadva
Épület szintszáma
1 Emeletes
Műemléki védelem
Műemléki környezeti védelem
Építési típus
Hagyományos falazott, vegyes vagy szilárd födém
Megközelíthetőség
Földszinti utcafronti

Lépjen velünk kapcsolatba!




Hamarosan jeletkezünk a megadott e-mail címen, vagy telefonszámon.

Hasonló ingatlanok

Üzlethelyiség 5 kép Piac utca 53. fsz./3
Alapterület
695 m2
Irányadó bérleti díj
Ajánlatot várunk
Üzlethelyiség 7 kép Piac utca 20.  fsz./3.
Piac utca 20. fsz./3.
(volt ékszerüzlet)
Alapterület
34 m2
Irányadó bérleti díj
270.000 Ft/hó+áfa
Üzlethelyiség 8 kép Benedek Elek tér 4.
Benedek Elek tér 4.
üzlet (korábbi hentesbolt)
Alapterület
104 m2
Kedvezményes bérleti díj
250.000 Ft/hó + áfa

FIGYELEM! Csalókra figyelmeztetünk!

Felhívjuk a lakáspályázat iránt érdeklődők figyelmét, hogy a Társaságunk által meghirdetett önkormányzati bérlakáspályázat esetében a pályázati kiírásban szereplő pályázati biztosítékon túl semmilyen további pénzbeli hozzájárulást nem kérünk és nem fogadunk el.

További részletek

;